R 2 900 000 | 2 bed property for sale in groot brakrivier central

Property Description

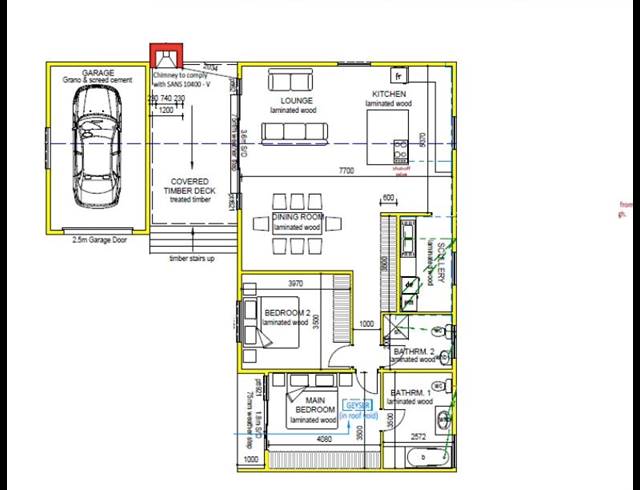
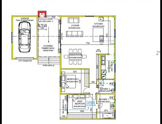
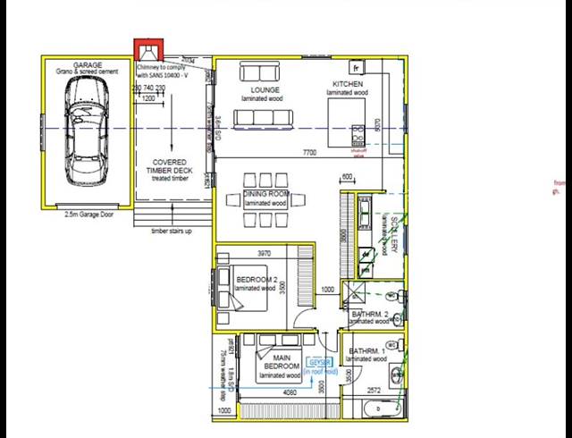
Set in a tranquil part of Great Brak River, this modern duet home currently under construction, offers exceptional value for money and effortless contemporary living. The home is thoughtfully designed around a spacious open-plan living room, dining area, and kitchen, creating a seamless flow that’s ideal for everyday family life and entertaining. The kitchen features clean, modern finishes and is complemented by a private scullery, keeping the main living space neat and uncluttered. The living area connects directly to a deck with a built-in braai, which also links to the single garage—perfect for relaxed indoor-outdoor living. Generous yard space surrounds the home, offering plenty of room for children, pets, or future landscaping. Accommodation includes two well-sized bedrooms and two bathrooms, with the main bedroom enjoying the convenience of an en-suite bathroom. Modern finishes throughout enhance the home’s fresh, low-maintenance appeal. This duet home is ideal for families, first-time buyers, or investors seeking quality, comfort, and excellent value in a sought-after coastal town. Photos of the finishes are for referral purposes a to showcase the quality you as the buyer can expect. No Transfer Duty


Property Details

Purchase Price R 2 900 000

Type of PropertyHouse

Last Updated10 Feb 2026

Rooms

Bedrooms2

Bathrooms2

External Features

Garages1

Property Location

Similar Property in nearby suburbs

Agent

Michelle Smith

Share        

Add Email Alert
To receive emails for similar properties in Groot Brakrivier Central!


Close