R 5 500 000 | land property for sale in xanadu

Property Description

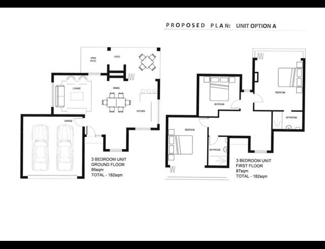
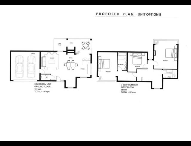
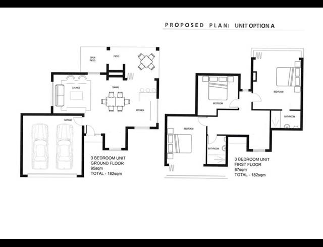
Calling all investors and developers! This prime 1ha vacant land in the heart of Xanadu Eco Estate, Hartbeespoort is fully zoned and ready for action. * Zoned for 30 sectional title duplex units * Proposed plans included – Two modern 3-bed layouts: * Option A: 182m² – 3 Bed, 2 Bath (Main En-suite) * Option B: 197m² – 3 Bed, 2 Bath (Main En-suite) * Located in a secure eco estate with top-notch amenities and nature on your doorstep Perfect for a turnkey residential development in a sought-after estate with growing demand!


Property Details

Purchase Price R 5 500 000

Type of PropertyLand

Land Size10000 m2

Last Updated29 Mar 2026

Property Location

Agent

Kay Ramalatso

Share        

Add Email Alert
To receive emails for similar properties in Xanadu!


Close