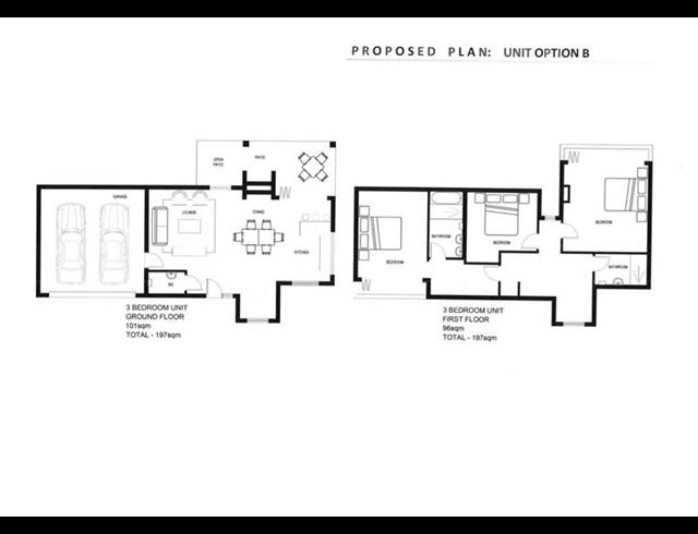
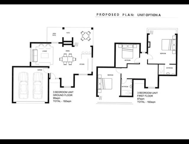
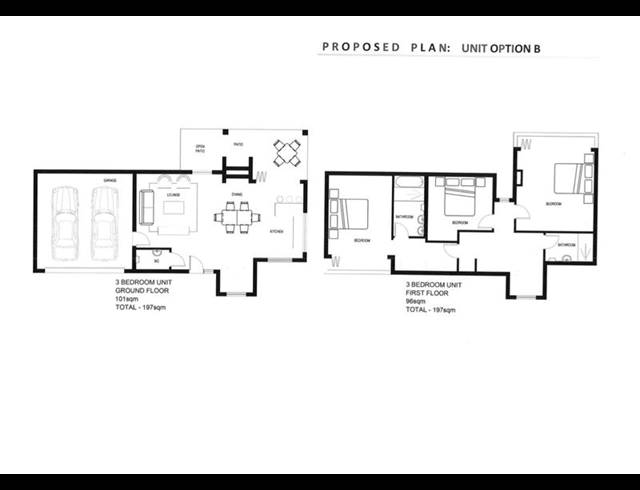
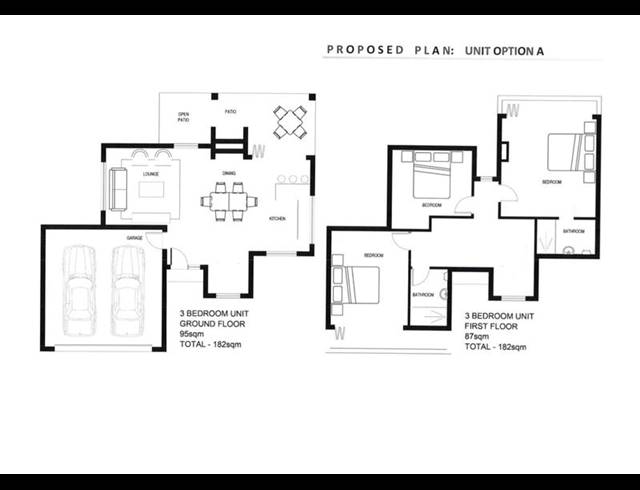
Calling all investors and developers! This prime 1ha vacant land in the heart of Xanadu Eco Estate, Hartbeespoort is fully zoned and ready for action. * Zoned for 30 sectional title duplex units * Proposed plans included – Two modern 3-bed layouts: * Option A: 182m² – 3 Bed, 2 Bath (Main En-suite) * Option B: 197m² – 3 Bed, 2 Bath (Main En-suite) * Located in a secure eco estate with top-notch amenities and nature on your doorstep Perfect for a turnkey residential development in a sought-after estate with growing demand!
Purchase Price R 5 500 000
Type of PropertyLand
Land Size10000 m2
Last Updated03 Feb 2026
Add Email Alert
To receive emails for similar properties in Xanadu!