R 6 450 000 | 4 bed property for sale in fountainbrook estate

Property Description

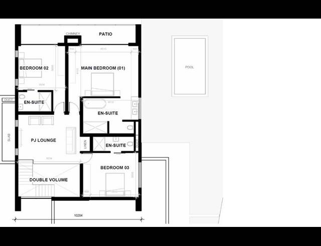
Discover the perfect blend of contemporary design and functional luxury in this brand-new 4-bedroom residence located in Fountainbrook Estate. Designed for those who value open spaces and seamless indoor-outdoor living, this home offers a sophisticated lifestyle in a secure environment. Ground Floor The ground level is dedicated to effortless entertainment and family connection. The expansive open-plan layout integrates the kitchen, dining, and lounge areas, creating a sense of space. Thoughtfully designed kitchen has a separate scullery to keep the main area pristine. Large glass sliding doors lead from the dining and lounge to a covered patio, perfect for alfresco dining while overlooking the sparkling swimming pool. A convenient ground-floor guest bedroom features a private en-suite bathroom, offering comfort and privacy for visitors. Two spacious garages provide secure internal access to the home. First Floor The upper features of the central pyjama lounge offers a cosy, is a informal spot for evening relaxation before heading to bed. The expansive main bedroom offers a full en-suite bathroom. Two additional bedrooms, both generously sized, each boast their own en-suite bathrooms, ensuring every family member enjoys their own private space. Swimming pool Linen cupboard Estate lifestyle


Property Details

Purchase Price R 6 450 000

Type of PropertyHouse

Last Updated24 Mar 2026

Rooms

Bedrooms4

Bathrooms4

External Features

Garages2

Property Location

Similar Property in nearby suburbs

Agent

Zani van Wyk

Share        

Add Email Alert
To receive emails for similar properties in Fountainbrook Estate!


Close