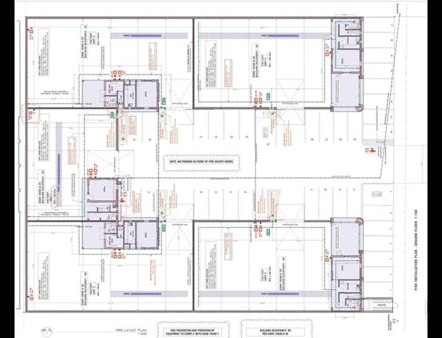
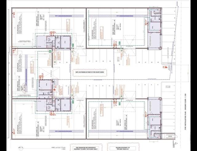
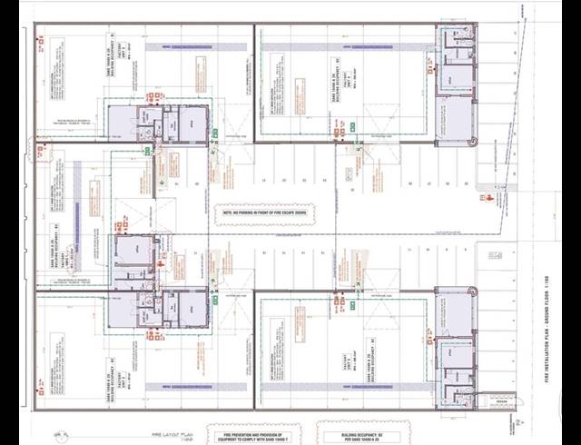
Commercial/Industrial Unit for Sale Unique Opportunity: This property is currently under construction, offering the flexibility to tailor the space to your specific needs. Key Features Unit 4: - Total Area: 432.48 sqm - Mezzanine: 41.48 sqm - Refuse Area: 1.78 sqm - Net Floor Area (NFA): 391 sqm Customization Options: With a range of unit sizes available, you can choose the perfect fit for your business. Don't miss this chance to create a space that suits your unique requirements. Act Fast: This property is expected to attract high interest. Contact us today to learn more and secure your ideal unit.
Purchase Price R 3 969 326
Building Size432 m2
Price Per SQMR 9188 m2
Type of PropertyIndustrial
Land Size2892 m2
Last Updated29 Aug 2025
Add Email Alert
To receive emails for similar properties in Mossdustria!