R 5 750 000 | 3 bed property for sale in diep river

Property Description

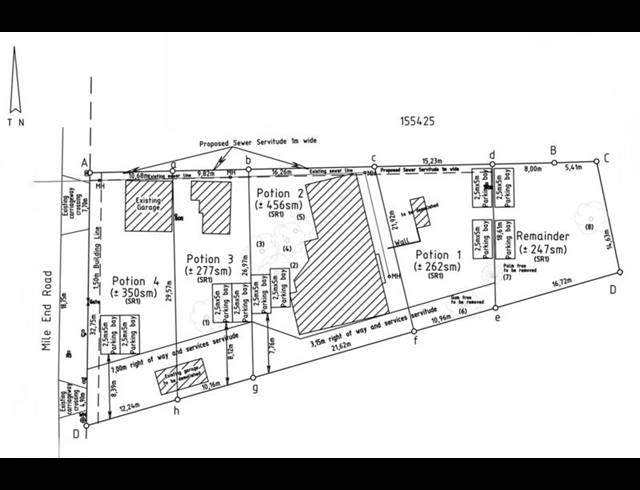
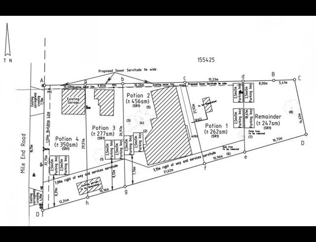
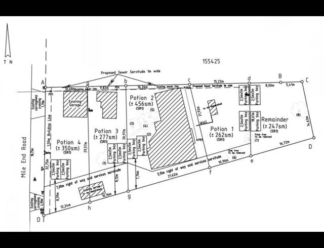
Prime Development Opportunity with Subdivision approval. Asking price: R 5 750 000 including VAT (R 5 000 000 plus VAT) *No Transfer Duty Payable* Perfectly positioned above the railway line in Diep River, this 1,592m² property offers approved subdivision into five separate erven, making it an exceptional opportunity to unlock the site’s full potential. The existing 3 bed home, situated on Portion 2 (456m²), is in need of renovation, ideal for those wanting to restore and retain its character while capitalising on the surrounding development potential. With approved subdivision already in place, the property offers excellent scope for a residential development comprising multiple freehold homes, catering to the strong buyer demand in this sought-after pocket of the Southern Suburbs. Conveniently located close to schools, shopping centres, transport routes, and within easy reach of the Constantia Valley and surrounding suburbs this property offers a great opportunity. Don’t miss this rare opportunity to develop in one of the Southern Suburbs’ most accessible and up-and-coming areas. Total Erf size: 1592m2 Approved Subdivision Sizes: Portion 1 = 262m2 Portion 2 = 456m2 (existing house) Portion 3 = 277m2 Portion 4 = 350m2 Remainder Portion = 247m2


Property Details

Purchase Price R 5 750 000

Type of PropertyHouse

Last Updated28 Jan 2026

Rooms

Bedrooms3

Bathrooms1

External Features

Garages2

Property Location

Similar Property in nearby suburbs

Agent

Jacques Baar

Share        

Add Email Alert
To receive emails for similar properties in Diep River!


Close